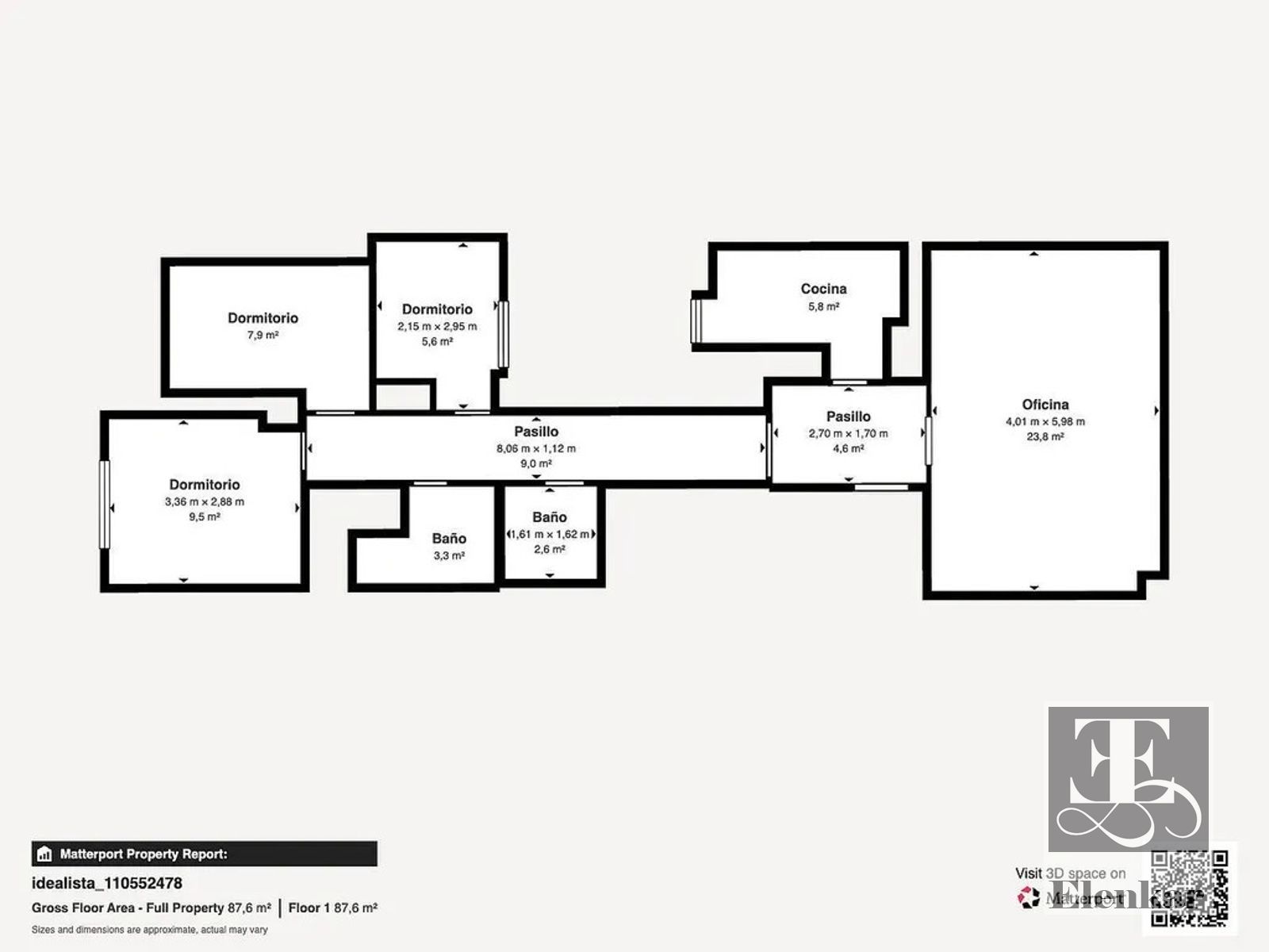
Piso en venta en Platja de Calafell, ideal como vivienda habitual o segunda residencia. Dispone de 103 m² construidos (85 m² útiles), se encuentra en buen estado y ofrece una distribución cómoda y funcional.
Cuenta con tres habitaciones dobles, un baño completo y un aseo, pensados para el uso diario. La vivienda dispone además de una amplia terraza exterior con orientación norte.
Ubicación excelente, a solo 200 metros del mar, con fácil acceso a la playa. Muy bien comunicada mediante autobús y estación de tren cercana.
En la zona encontrarás centros comerciales, colegios y hospitales, lo que aporta comodidad y tranquilidad para el día a día.